Product details
Product information
This Bourne 14×12 log cabin is perfect great summerhouse, ideal for relaxing in the garden plus secure storage for garden essentials. Assembly required.
- Assembly required
- Only fixings included
- Great summerhouse, ideal for relaxing in the garden plus secure storage for garden essentials
Features and benefits
- Tongue and Groove sheds have a high quality tongue and groove construction formed from watertight, interlocking, smooth planed boards. Tongue and groove constructions offers great protection from wind and rain penetration
- This structure is supplied untreated ready for you to apply your chosen wood preservative. Whether you paint or stain your structure, wood treatment helps to protect your structure against rot and decay
- Pressure treated floor bearers
- Draught sealed doors & opening windows
- We recommend that our Log cabins are assembled on a pre-laid, solid and level concrete base
- Provided with secure lock & key
- Planning friendly external ridge height does not exceed 2.5m
- The dimensions given refer to the external dimensions of the product unless otherwise stated
- This structure is supplied unpainted and empty
Specifications
| Base included | Base not included |
|---|---|
| Cladding thickness | 28mm |
| Cladding type | Tongue & groove |
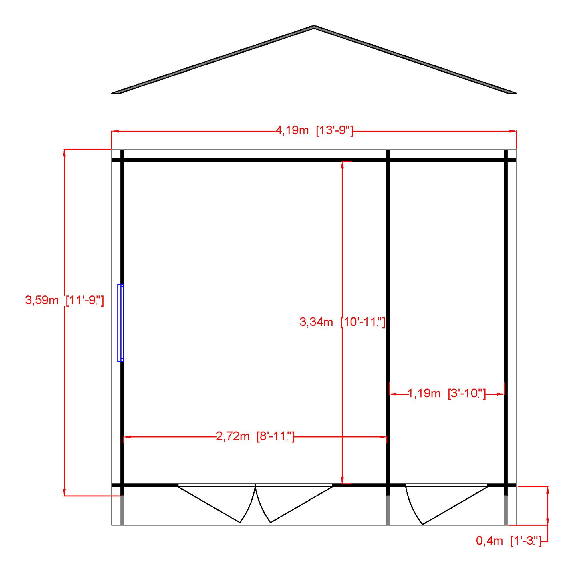
| Depth (m) | 3.59m |
| Height (m) | 2.5m |
| Locking mechanism | Mortice & rim lock |
| Made in | England |
| Material | European softwood |
| Number of doors | 3 |
| Number of fixed windows | 1 |
| Roof type | Apex |
| Width (m) | 4.19m |
| Product code | 5019804119905 |













Reviews
There are no reviews yet.